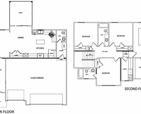
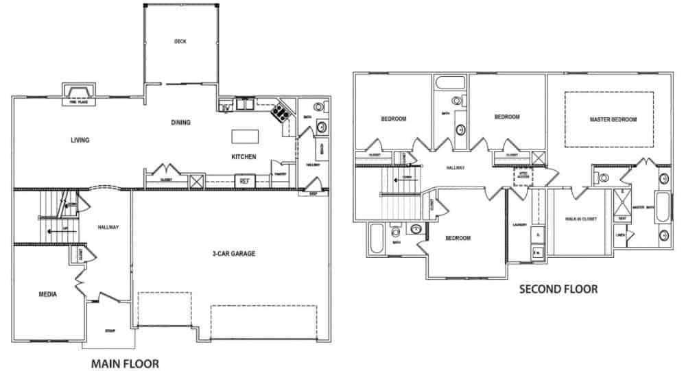
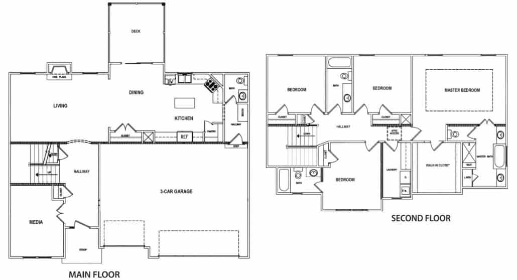
The Redford by Hoffmann Custom Homes

  • Two Story Home
  • 4 Bedrooms, 3.5 Baths, 3 Car Garage
  • 2 Walk-in Pantries
  • Large Master Walk-in Closet
  • Laundry on 2nd Floor