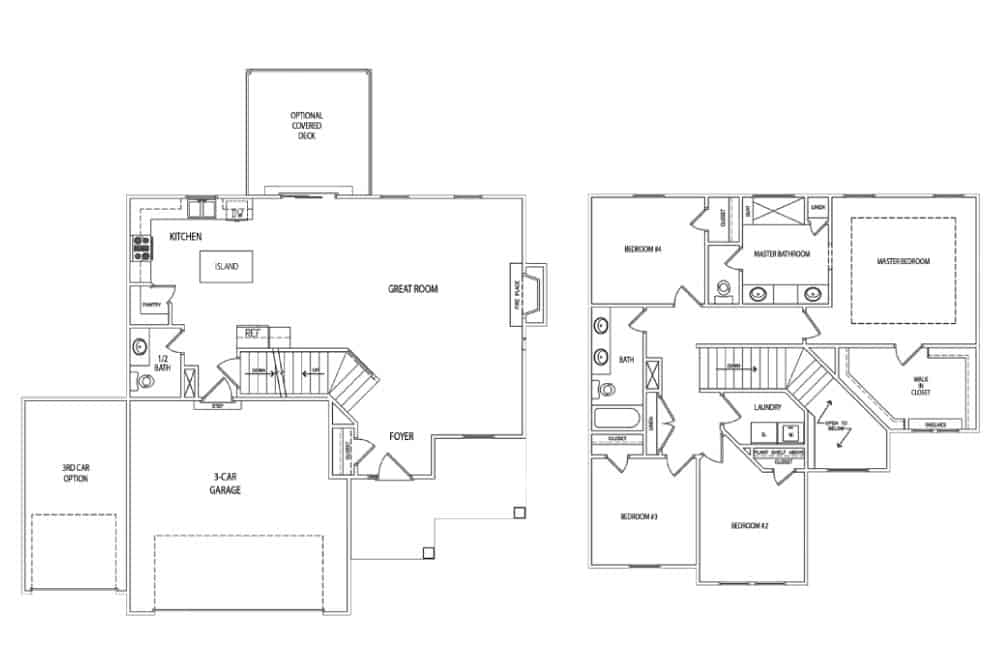
The Willow II by Hoffmann Custom Homes

  • Reverse 1.5 Story
  • 4 Bedrooms, 2.5 Baths, 3 Car Garage
  • Large Master with Walk-in Closet
  • Laundry on Same Floor as Bedrooms
  • Generous Storage Throughout